Skip to main content
AU Australian Owned

Project Details

Client Name

Broccoli, QLD

Application

Distribution Center

Scope

Supply and installation of T5 Generator
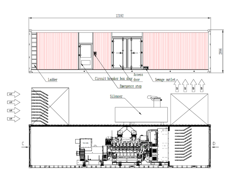
  • 2250kVA generator in 40ft Enclosure at (85 DB @ 1m)
  • 1000L day tank
Supply and installation of T6 Generator
  • 2250kVA generator in 40ft Enclosure at (75 DB @ 1m)
  • 10 000L Bulk tank
  • Fuel Laundering System

Class Power Solution

Class Power Systems has successfully executed the scope of work encompassing the Design, supply, and installation of T5 & T6 generators 
  • Engine:
    MTU
  • Model:
    MTU 16V4000 G23F
  • Prime Power:
    1640kW / 2050kVA
  • Standby Power:
    1800kW / 2250kVA

  • Acoustic Containers in a 40' configuration
    (75Db - 87db @ 1m)
  • 1000 L Day tank inside T5 and installation of a fuel system that pumps out the fuel day tank in the event of fire.
  • 10,000 L Bulk tank for T6 as an external day tank along with a fuel polishing system inside the gen-set container.

Class Power Systems remains dedicated to delivering top-tier solutions that meet our clients' unique needs. Class Power offers a complete range of brand-new, high-quality products, each rigorously factory-tested, with a 12-month warranty from the commissioning date for your peace of mind. We look forward to adding your project to our ever-growing list of success stories. For more details on our projects or to discuss your specific requirements, please don't hesitate to get in touch with us.