Skip to main content
AU Australian Owned

Project Details

Client Name

Martin Place

Application

Business Center

Scope

Supply and installation following systems and subsystems:
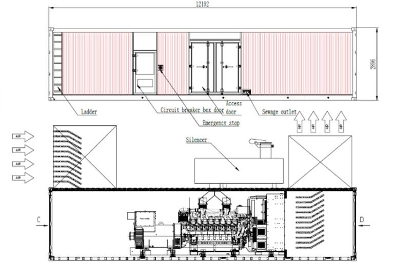
  • Generator unit with Standby rating 1000 KVA
  • Remote radiator design
  • 1000L Day tank

Class Power Solution

Class Power Systems has successfully executed the scope of work encompassing the design, supply, and installation of 1000KVA generator.
  • Engine:
    Perkins & 4006-23TAG3A
  • Model:
    CP1000 Generator
  • Prime Power:
    728kW / 910kVA
  • Standby Power:
    800kW / 1000kVA

  • Heat exchanger system without compromising efficiency and Power output.
  • 1000L Day tank and fuel system

Class Power Systems remains dedicated to delivering top-tier solutions that meet our clients' unique needs. Class Power offers a complete range of brand-new, high-quality products, each rigorously factory-tested, with a 12-month warranty from the commissioning date for your peace of mind. We look forward to adding your project to our ever-growing list of success stories. For more details on our projects or to discuss your specific requirements, please don't hesitate to get in touch with us.